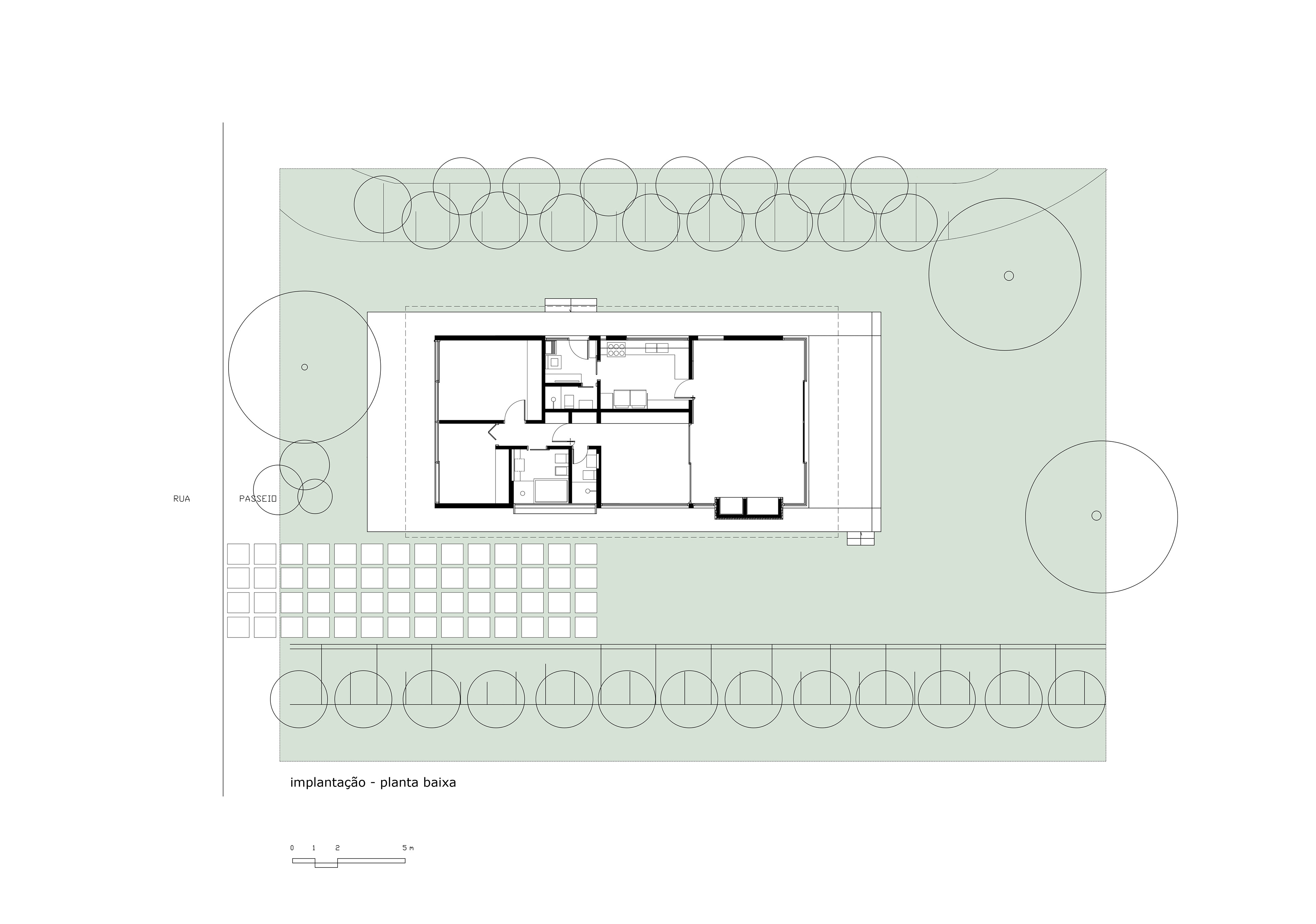
Menção honrosa no Prêmio AsBEA 2008, a casa foi construída em 2007 em um clube de campo às margens da represa de Guarapiranga, onde há décadas, já não eram admitidas novas construções. A exceção se deu, porque a casa existente estava em estado crítico e teve que ser demolida, mas com a condição de que o novo projeto seguisse o perímetro e a área da casa original.
O programa, para atender um casal sem filhos, foi distribuído em um pavimento elevado a 40 centímetros do terreno natural, isolando a casa do solo extremamente úmido. Envolta pelos 200.000m² de mata atlântica preservada do clube, procuramos emoldurar o verde com grandes painéis de vidro, conectando o interior ao exterior e priorizando a ventilação e iluminação naturais.
DESENHOS
LINKS
FICHA TÉCNICA
DADOS DO PROJETO
Ano: 2007
Local: São Paulo, Brasil
Área construída: 150m²
FOTOS
Christian Maldonado
EQUIPE
Cláudia Haguiara
Back to Top